Property Description

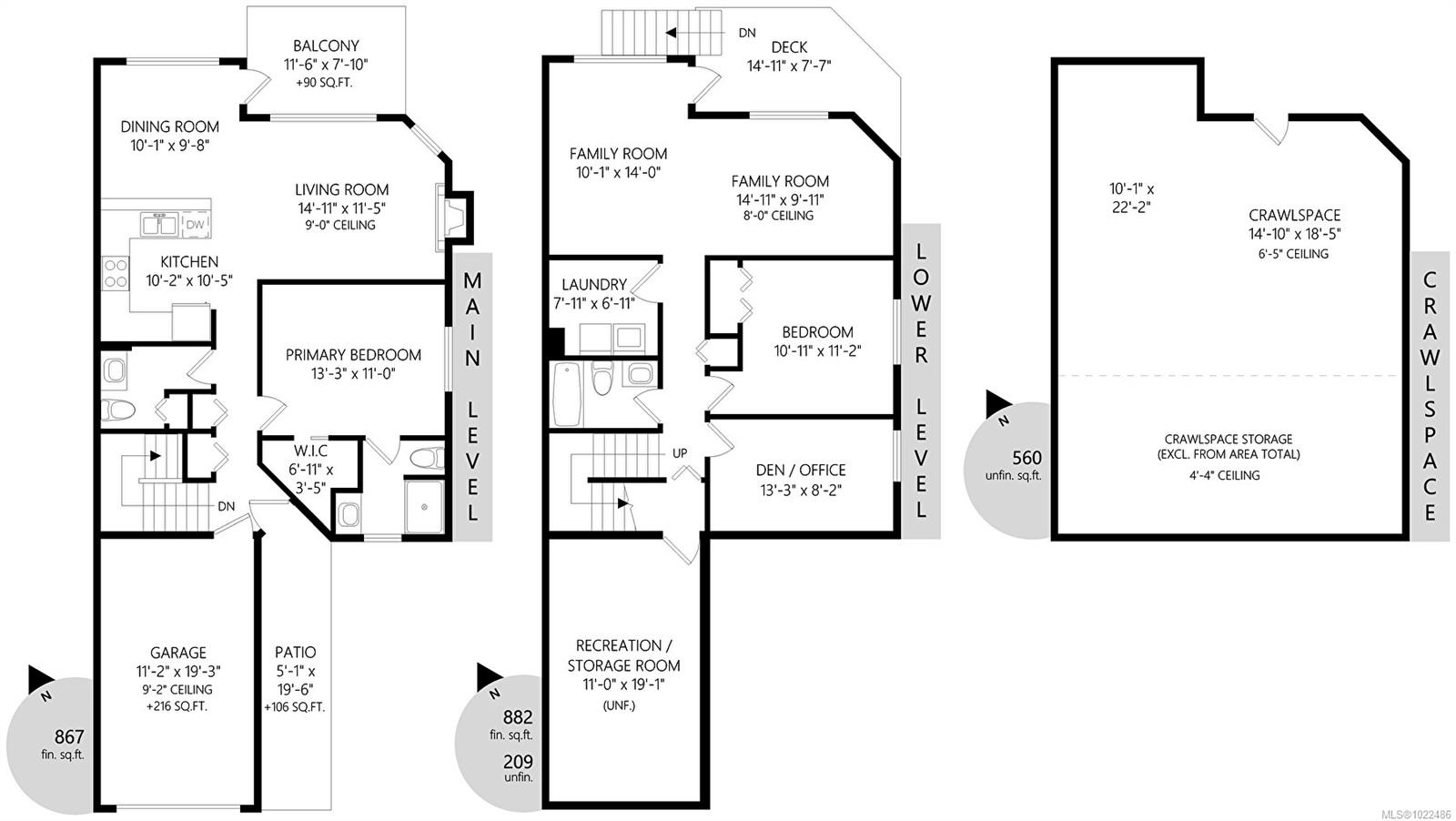
Stunning ocean views from this lovely main level entry, side by side half duplex on Chemainus' sought after View Street. Views also take in Gulf Islands and mainland mountains. This open plan home has one bedroom on the main with it's own 3 piece ensuite. Walk in to stunning views right through to the living room, dining room and kitchen. Kitchen has island and is open to the living room with natural gas fireplace. The lower level boasts a large master bedroom with 3 piece ensuite, large walk in closet, bonus room sitting area with it's own natural gas fireplace and private deck. As well as a 3rd Bedroom, additional 4 piece bathroom, large laundry room with utility sink and a 245 sq.ft. storage room. This home also comes with additional crawl space storage under the covered deck. Freehold Strata With No Pet Restrictions and No Age Restrictions. Owner just replaced the roof - this lovely home is ready to go

Property Details

  • Property ID:30382412
  • Price:$749,000
  • Property Type:Residential
  • Bedrooms:2
  • Bathrooms:3
  • Lot Size:3500.00 sq ft
  • Living Area:1749.00 sq ft
  • Year Built:1997
  • Parking:2 spaces
  • Status:Active
  • City:Chemainus
  • State/Province:BC
  • Postal Code:V0R 1K2
  • Listing Agent:Michael Pickard
  • Office:RE/MAX Generation (CH)

Condition

  • 3 Bedrooms
  • 2 Bathroom
  • 1 Garage
  • 1 Balcony
  • 4800 sq ft
  • TV

Features

  • Air conditioning
  • Wifi
  • Swimming Pool
  • Double Bed
  • Balcony
  • Telephone
  • Garage
  • Parking
  • TV
  • Home Theater
  • Alarm
  • Garage
  • Gym
  • Electric Range
  • Private space

Floor Plans

Size Rooms Bathrooms
1600 3 2
floor-plans

Property Vedio

Property Location